Maison - À vendre - 5340 Gesves À partir de 129 000 €

Maison - À vendre - 5340 Gesves
2 PEB : G

Description

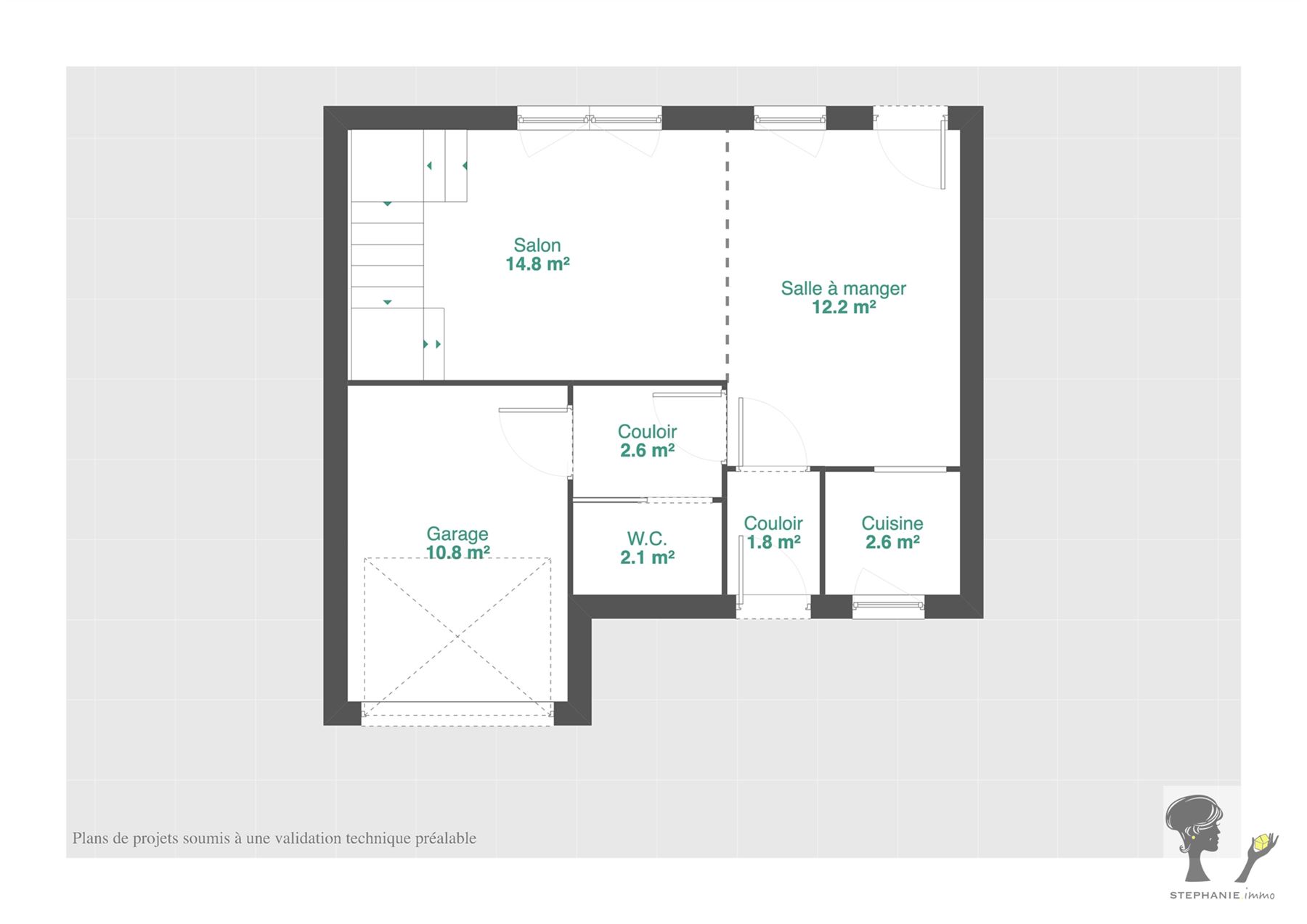
Un descriptif très complet avec documents téléchargeables est visible sur www.stephanie.immo. Stéphanie.immo a le plaisir de vous présenter cette maison 3 façades située à Gesves, au calme mais proche de toutes les commodités. Vous serez notamment séduits par sa vue dégagée et son potentiel d'aménagement. La maison se compose comme suit : *RDC : hall d’entrée, sàm avec un accès direct sur la terrasse et le jardin, salon, cuisine, garage et WC. *1er : 3 pièces de (17,1 - 12,7 et 11,6m2) permettant d'établir un espace nuit confortable. *2ème : grenier aménageable moyennant travaux. D'un point de vue technique : chauffage avec accumulateurs électriques, châssis SV bois, PEB G (816 kWh/m²/an – 20251201013679). Amateurs de rénovation souhaitant acquérir un bien pour l'aménager comme vous le souhaitez ? Ce bien est fait pour vous ! Faire offre à partir de 129.000€ (sous réserve d’acceptation des propriétaires). Infos et visites : Stéphanie & Katya : 0456.81.58.30 ou [email protected]. Superficies données à titre indicatif.

Documents

Général

Référence 913
Meublé Non
Nombre de chambres 2
Jardin Oui
Surface du jardin 660 m²
Garage Oui
Terrasse Oui
Parking Non
Surface de la parcelle 1349 m²

Intérieur

Etat général A rénover
Chambres 2
Toilettes 1
Cuisine Non-équipée
Châssis Bois
Vitrage Simple
Chauffage (type) Accumulateurs électriques
Chauffage (ind/coll) Individuel
Cave Oui
Grenier Oui
Nombre d'étages 2

Raccordement

Télévision Oui
Téléphone Oui
Electricité Oui
Eau Oui

Environnement

Environnement Résidentiel
Orientation Sud-est

Extérieur

Toiture Non communiqué
Année de construction 1875
Façades 3 façades

Consommation et performance énergétique

E spec (Kwh/m²/an) 816 Kwh/m²/an
E totale (Kwh/an) 90324
Label PEB G
Date d'expiration du certificat énergétique 01/12/2035
Code unique 20251201013679
Votre agent
Katya
E-mail
Prendre contact pour le bien : 913

* Champs obligatoires

Sélection des points d'intérêts

Biens similaires

Préférences pour les cookies

La protection de vos données personnelles est importante pour nous. C’est pourquoi nous détaillons ci-dessous les différents services et fonctionnalités du site qui utilisent des cookies et nous vous laissons décider des cookies que vous souhaitez autoriser ou refuser.

Veuillez cependant noter que si vous bloquez certains types de cookies, cela pourrait impacter votre expérience de navigation sur notre site ainsi que les fonctionnalités disponibles.

Nous utilisons des cookies fonctionnels obligatoires pour assurer le bon fonctionnement du site. Ils sont, par exemple, nécessaires pour retrouver le résultat d’une recherche ou enregistrer le choix de la langue.

Certaines fonctionnalités, comme l’affichage de vidéos ou de cartes géographiques, sont assurées via des composants externes développés par des partenaires comme YouTube ou Google. Certains composants utilisent des cookies qui sont susceptibles de permettre à ces tiers de suivre le comportement des internautes afin, par exemple, de réaliser du ciblage publicitaire. L’activation de ces fonctionnalités et des cookies associés est donc soumis à votre consentement.