Se rendre au contenu
Maison
Maison - photo 2
Maison - photo 3
Maison - photo 4
Maison - photo 5
Photos
Prix

Vendu

À vendre

Maison

187 m² habitable
4 Chambres
2 Salles de douche
1620 m² Terrain
2 Parkings
4 Façades

Ideally located in the pretty village of Sorée (Gesves), in a quiet area, with all amenities at hand (shops, main roads, schools, ...), we offer this charming house of +/- 190 m² living space with a convertible barn! The house has a large land of +/- 16 ares 20 ca. Possibility to divide the property in two lots (house/barn), prior approval from the commune. At the moment the house has the following layout: On the first floor you will find an entrance hall, a living room, a dining room, a kitchen and back kitchen, a bathroom, a bedroom and a garage! On the first floor, 2 bedrooms and a spacious night hall that can be used as an office. On the 2nd floor, an attic. The house also has a cellar. From an energy point of view: Single glazed window wood/alu, electricity not in conformity, oil stoves, PEB G (n°20220812007449 - 591 kwh/m².an) Possibility of reduction of the registration fees. Surface areas mentioned as an indication. You have a lot of ideas and dream of starting a new project? Contact us! Do you have a question? A visit ? Contact SARAH 0498 66 76 40 or [email protected]

Type de bienMaison
Nombre de façades4

Surface habitable187
Nombre de chambres4
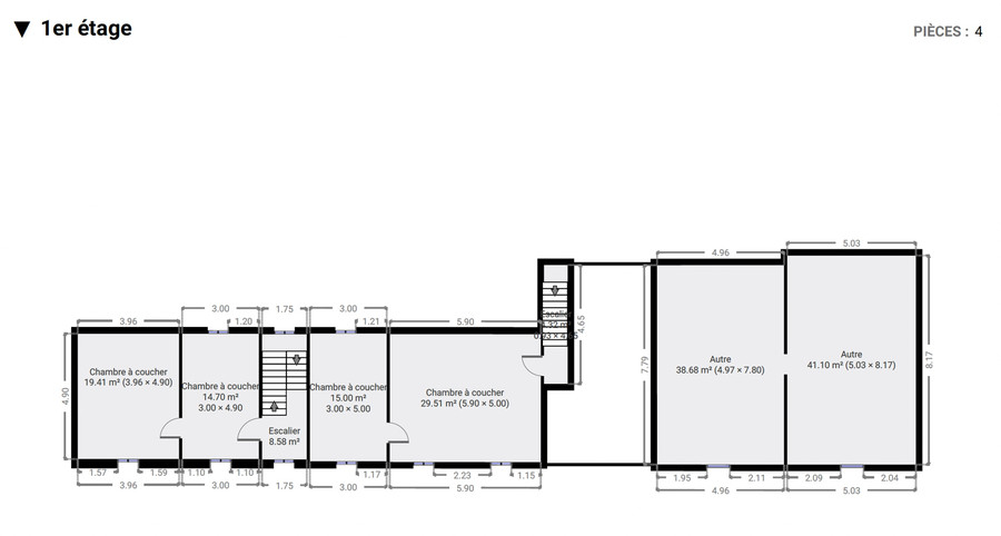
Surface de la chambre 14,70 m²,   19,41 m²,   15 m²,   29,50 m²
Nombre de salles de douche2
Nombre de toilettes2
Surface de la cuisine 5,88 m²,   12,26 m²
Surface de la salle à manger 14,90 m²,   14,59 m²
Nombre de cuisines2
CaveOui
GrenierGrenier aménageable

Surface du terrain1.620
JardinOui
Orientation du jardinSud-Est
TerrasseOui
Garage2

Câbles TVOui
Câbles téléphoniquesOui
Eau de villeOui
ÉgoutOui

Classe énergétique
Consommation d'énergie primaire73.671 kWh/an
Consommation spécifique d'énergie521 kWh/m².year
Code PEB20170303015493
VitrageDouble
ChâssisPVC
Source d'énergieGaz

Prix À partir de 359.000€
Revenu cadastral736,00
Prix

Vendu