Se rendre au contenu
Maison
Maison - photo 2
Maison - photo 3
Maison - photo 4
Maison - photo 5
Photos
Prix

Vendu

À vendre

Maison

176 m² habitable
3 Chambres
1 Salle de douche
Étages 2
1024 m² Terrain
2 Garages
1 Parking
2 Façades

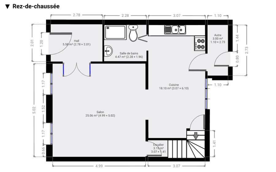
VENDUE ! Idéalement située dans le joli village de Gesves, au calme, à proximité des facilités et des grands axes de communication, venez découvrir cette charmante maison en pierres du pays avec terrasse, jardins et garage à l'arrière de la maison accessible par un chemin privatif. Elle se compose comme suit : au rez : hall, salon, sàm/cuisine, salle de douche, WC, buanderie. A l’étage : hall, trois chambres. Elle présente également un vaste grenier de +/- 60 m2 aménageable (toiture rénovée et isolée). Sous-sol : cave. D'un point de vue énergétique, la maison bénéficie d’un c.c. mazout, de châssis double vitrage en bois. PEB C (n°20220525002074 - 217 kWh/m²). Possibilité de réduction des droits d'enregistrements. Venez la découvrir sans plus tarder ! FO àpd 275.000€ ss réserve d'acceptation par les propriétaires. Superficies mentionnées à titre indicatif. CONTACT : Stéphanie et Zoé - 0472/67.64.01 - [email protected]

Type de bienMaison
Nombre de façades2
Nombre d'étages2

Surface habitable176
Nombre de chambres3
Surface de la chambre 21,42 m²,   13,72 m²,   10,64 m²
Nombre de salles de douche1
Nombre de toilettes1
Surface de la cuisine 18,10 m²
CaveOui
GrenierGrenier aménageable

Surface du terrain1.024
JardinOui
Orientation du jardinSud
TerrasseOui
Orientation de la terrasseSud
Garage1

Câbles TVOui
Câbles téléphoniquesOui
Eau de villeOui
ÉgoutOui

Classe énergétique
Consommation d'énergie primaire42.837 kWh/an
Consommation spécifique d'énergie217 kWh/m².year
Code PEB20220525002074
VitrageDouble
ChâssisBois
Source d'énergieGaz
Certificat électriqueNon

Prix À partir de 275.000€
Revenu cadastral531,00
Prix

Vendu