Se rendre au contenu
Maison
Maison - photo 2
Maison - photo 3
Maison - photo 4
Maison - photo 5
Photos
Prix

Vendu

À vendre

Maison

153 m² habitable
3 Chambres
3 Salles de bains
Étages 2
2 Façades

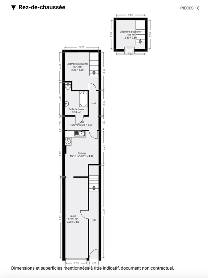
OPTION ! Un descriptif très complet avec documents téléchargeables est visible sur www.stephanie.immo . Stéphanie.immo vous propose cette maison unifamiliale de +/- 150 m² à rénover, idéalement située dans la rue principale de Dinant. Actuellement, le bien est occupé par un locataire au rez-de-chaussée (division non régulière, le bien devant rester une maison unifamiliale). Voici quelques lignes sur son agencement ; au rez-de-chaussée : hall, pièce de vie, cuisine, coin buanderie, salle de bain avec wc, débarras et chambre en mezzanine. 1er étage : hall, cuisine, chambre, salle de bain avec wc. 2e étage : hall, cuisine, chambre, salle de bain avec wc. La maison possède également une cave et un grenier aménageable. D’un point de vue énergétique, le bien bénéficie de châssis DV PVC, d’un chauffage central au gaz de ville (rdc) et de convecteurs au gaz dans les étages. PEB C (249 kWh.m²/an, n°20240131015120). Cette maison offre un beau potentiel de réaménagement et de beaux volumes ! Superficies mentionnées à titre indicatif.

Type de bienMaison
Nombre de façades2
Nombre d'étages2

Surface habitable153
Nombre de chambres3
Surface de la chambre 7,84 m²,   15,57 m²,   16,79 m²
Nombre de salles de bain3
Nombre de toilettes3
Surface de la cuisine 13,16 m²,   16,35 m²,   22,16 m²
Nombre de cuisines3
CaveOui
GrenierGrenier aménageable

Panneaux photovoltaïquesOui
Câbles TVOui
Câbles téléphoniquesOui
Eau de villeOui
ÉgoutOui

Classe énergétique
Consommation d'énergie primaire36.391 kWh/an
Consommation spécifique d'énergie249 kWh/m².year
Code PEB20240131015120
VitrageDouble
ChâssisPVC
Source d'énergieGaz
Certificat électriqueOui, non conforme

Prix À partir de 95.000€
Revenu cadastral1.034,00
Prix

Vendu