Se rendre au contenu
Duplex
Duplex - photo 2
Duplex - photo 3
Duplex - photo 4
Duplex - photo 5
Photos
Prix

Loué

À louer

Duplex

104 m² habitable
2 Chambres
1 Salle de bain
32 m² Terrasse
2 Façades

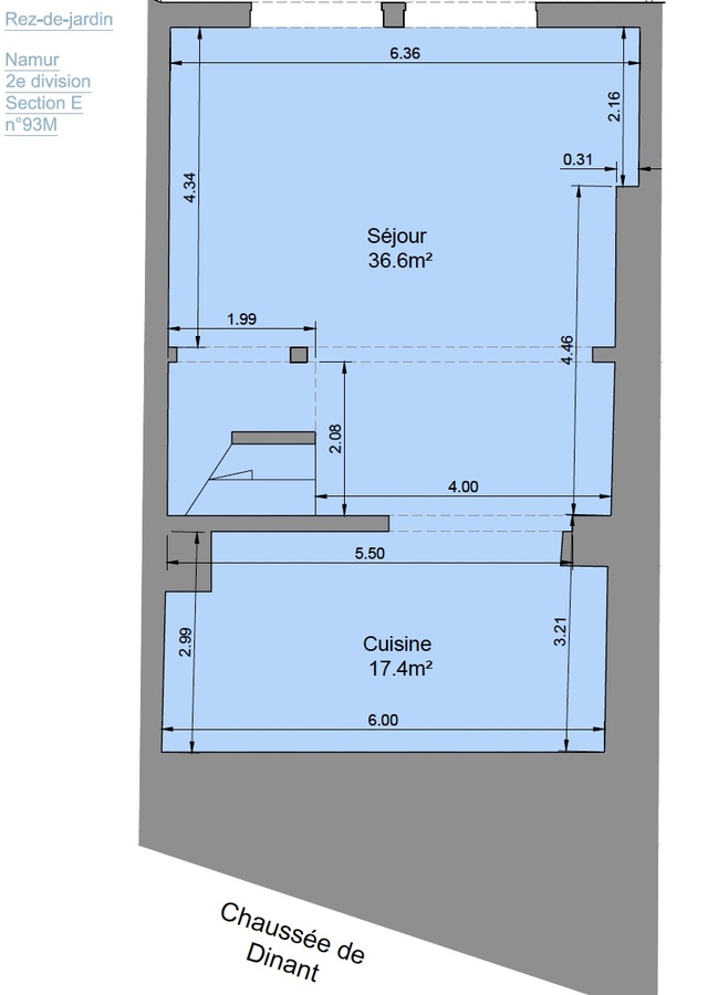
Loué en une matinée de visite ! Un descriptif très complet avec documents téléchargeables est visible sur www.stephanie.immo. Vous souhaitez planifier une visite en ligne sans attendre ? C'est possible via notre site en cliquant sur le bouton "planifier une visite" ! Namur (La Plante) - A la recherche d’un spacieux et lumineux duplex où poser vos valises ? Bénéficiant d'une localisation prisée et proche de toutes facilités (commerces, écoles, transports en commun) ? Ce duplex est un véritable "coup de cœur" alliant charme et confort moderne. Vous serez entre autres séduits par ses beaux espaces de vie ouverts, son joli jardin privatif de +/- 200 m² idéalement orienté sud-est et agrémenté d'une terrasse. Situé à l'arrière d'une petite copropriété comprenant 2 logements, il se compose comme suit : hall, salon, sàm/cuisine super équipée, espace bureau, 2 chambres, wc, buanderie, salle de bain avec douche à l'italienne et baignoire. Visite virtuelle :  https://my.matterport.com/show/?m=5C7jXDq3rSt. D’un point de vue énergétique, il bénéficie de chassis DV PVC, chaudière à condensation (2021) au gaz de ville. PEB B (145 kWh.m²/an, n°20180322015779), adoucisseur d’eau, citerne d’eau de pluie. Installation électrique bi-horaire conforme.  Superficies mentionnées à titre indicatif

Type de bienDuplex
Année de construction2009
Nombre de façades2

Surface habitable104
Nombre de chambres2
Surface de la chambre 12,70 m²,   12,40 m²
Nombre de salles de bain1
Nombre de toilettes1
Surface de la cuisine 17,40 m²

JardinOui
Surface de la terrasse32

Câbles TVOui
Câbles téléphoniquesOui
Eau de villeOui
ÉgoutOui

Classe énergétique
Consommation d'énergie primaire18.138 kWh/an
Consommation spécifique d'énergie145 kWh/m².year
Code PEB20180322015779
VitrageDouble
ChâssisPVC
Source d'énergieGaz
Certificat électriqueOui, conforme

Prix À partir de 1.150€
Revenu cadastral1.611,00
Prix

Loué