
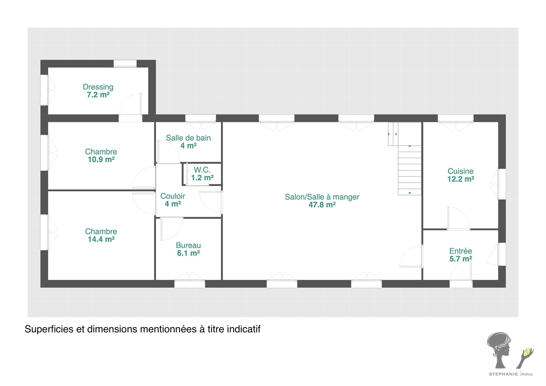
Un descriptif très complet avec documents téléchargeables est visible sur la page du bien sur notre site : https://www.stephanie.immo. Une visite ? Prenez rdv en ligne sans tarder via notre site sur la page du bien en cliquant sur "planifier une visite" ! Vous êtes à la recherche d'une maison de plain-pied située dans un endroit paisible ? Ne cherchez plus ! Stéphanie.immo vous propose cette jolie maison 2 chambres située à Mozet, au calme mais proche de toutes les commodités. Vous serez notamment séduits par la superbe vue qu'elle offre sur la vallée et sa luminosité. Entièrement de plain-pied, elle se compose comme suit : un hall d'entrée, une cuisine, un spacieux séjour de +- 47,8m2, un hall de nuit, 2 chambres dont une avec dressing, un bureau, une salle de bain et un WC séparé. Possibilité d'aménager une 3ème chambre sur la mezzanine. Elle possède également un garage et des caves pour plus d'espaces de stockage. D'un point de vue technique, la maison bénéficie de châssis DV en bois, d'un c.c. mazout et d'une citerne d'eau de pluie. PEB G ( 1015 kWh/m2.an - n° 20240611028311). Cette propriété est prête à vous accueillir afin de créer une nouvelle histoire. Vous avez des projets plein la tête ? Ne tardez pas à la visiter ! Infos et visites : Stéphanie : 0456 13 47 20 - [email protected]. Faire offre à partir de 225.000€ sous réserve d'acceptation par les propriétaires. Les superficies et dimensions sont mentionnées à titre indicatif.
Adresse :
Rue des Comognes 23 - 5340 Mozet
Référence | 761 |
---|---|
Meublé | Non |
Nombre de chambres | 2 |
Nombre de salles de bain | 1 |
Jardin | Oui |
Garage | Oui |
Terrasse | Oui |
Parking | Oui |
Surface habitable | 135,7 m² |
Surface de la parcelle | 1021 m² |
Etat général | A rénover |
---|---|
Chambres | 2 |
Salles de bain | 1 |
Toilettes | 1 |
Cuisine | Armoires seulement |
Châssis | Bois |
Vitrage | Double |
Chauffage (type) | C.C. au mazout |
Chauffage (ind/coll) | Individuel |
Cave | Oui |
Télévision | Oui |
---|---|
Egout | Oui |
Téléphone | Oui |
Electricité | Oui |
Eau | Oui |
Environnement | Calme |
---|
Toiture | Non communiqué |
---|---|
Toiture (matériau) | Ardoises naturelles |
Façades | 4 façades |
E spec (Kwh/m²/an) | 1015 Kwh/m²/an |
---|---|
E totale (Kwh/an) | 159870 |
Label PEB | G |
Date d'expiration du certificat énergétique | 11/06/2034 |
Code unique | 20240611028311 |